住宅地図と不動産登記制度上の地図、その他

一般的に「地図」といえば、誰しもGoogleマップやゼンリン住宅地図のようなものをイメージすると思います。

しかし、不動産登記制度において「地図」と呼んでいるものは、そのイメージとは大きく異なります。

一般的な地図は、人の住んでいるところや行き先を調べるために、実際の景色に基づいた描写をして、そこに各場所の名称などが記載されています。

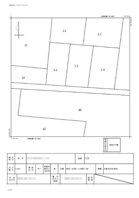
これに対して、不動産登記制度における「地図」は、登記された地番の位置や隣接関係を明らかにするために作成されるもので、高低差や建物、工作物(線路や段差など)といった現物は描かれていません。下の参考イメージのように、直線や曲線で表された、地番を持つ土地の集合です。

なお、不動産登記制度における「地図」は、よく「公図」などとも呼ばれていますので、以後こちらの呼称を用いることにします。

▼参考イメージ

map sample

住宅地図では調べられず、公図によってのみ調べられる内容には、例えば次のようなものがあります。

  • 田畑や道路の地番。田畑はもちろん、道路にも地番がついていることはあります。
  • 自分の家の敷地内にある、別の地番の土地。一つだと思っていた敷地に実は複数の地番があったり、実は昔の里道や水路が敷地の真ん中を横切っていた、などと言うことが、ごくまれにあります。

筆界確認の必要な隣接地や、合筆の際に2筆の土地が接しているかどうかは、住宅地図ではなく公図で判断することになります。

地図と地図に準ずる図面

そのような公図も、実は大きく2つに分かれます。

一つは「14条地図」とよばれるもの。不動産登記制度で「地図」と言えばこちらを指します。

14条地図は簡単に言えば「とても正確な地図」です。正確な測量及び調査の成果に基づいて作成されたものが、こう呼ばれます。

なので、調べたい土地を含む地域に対して作成されているのが14条地図であれば、数字としては記載されてはいないものの、実際の辺長が反映されているので、その土地の位置や形状が、かなり正確に分かります。

もう一つは、「地図に準ずる図面」とよく呼ばれます。「公図」という名称も、厳密にはこちらを指すという話もあります。

「準ずる」という言葉通りですが、つまりは「地図っぽい地図」であり、正確な測量や調査の成果に基づいてはいません。

では何に基づいているかというと、その多くは明治時代にあった地租(昔の固定資産税みたいなもの)徴収のために作られた地押調査図です。

詳しい説明は省きますが、要するに今のような測量器械もない時代に作られた資料ですので、正確な形状は期待するべくもありません。ただ、少なくとも各地番の隣接関係については、形状の正確さに関係なく信頼できるはずですので、これら古い資料を地図に準ずる図面として登記所に備え付け、14条地図が作成されるまでの間は、それらを根拠として隣接関係を判断することになっています。

ですので、閲覧したのが「地図に準ずる図面」であれば、自分の土地が本当は正方形なのに長方形で描かれていたとしても、特に気にすることはありません。

ただ、なにしろ古い資料であり、絶対に間違いがないとも言い切れません。あるはずの地番が抜けている、現地では明らかに別の場所にある他人の土地の地番が自分の敷地内に描かれている、「123+456」のようにプラスで表示されていて区画されていない、など様々な誤りが見つかることがあります。

たとえ自分の目には明らかな誤りであっても、登記所備え付けの資料である以上、第三者的にはそれを根拠として判断するしか無いので、こういった誤りを見つけた時は、「地図訂正申出」によって登記所に訂正してもらうことになります。

その他

その他に、市役所税務課で「地番図」あるいは「地番参考図」と呼ばれるものがあります。これらは固定資産税の資料として市が作成しているもので、閲覧も可能ですが、あくまで市の資料ですので、登記上の法的根拠にはなりません。